MODEL BİLGİLERİ
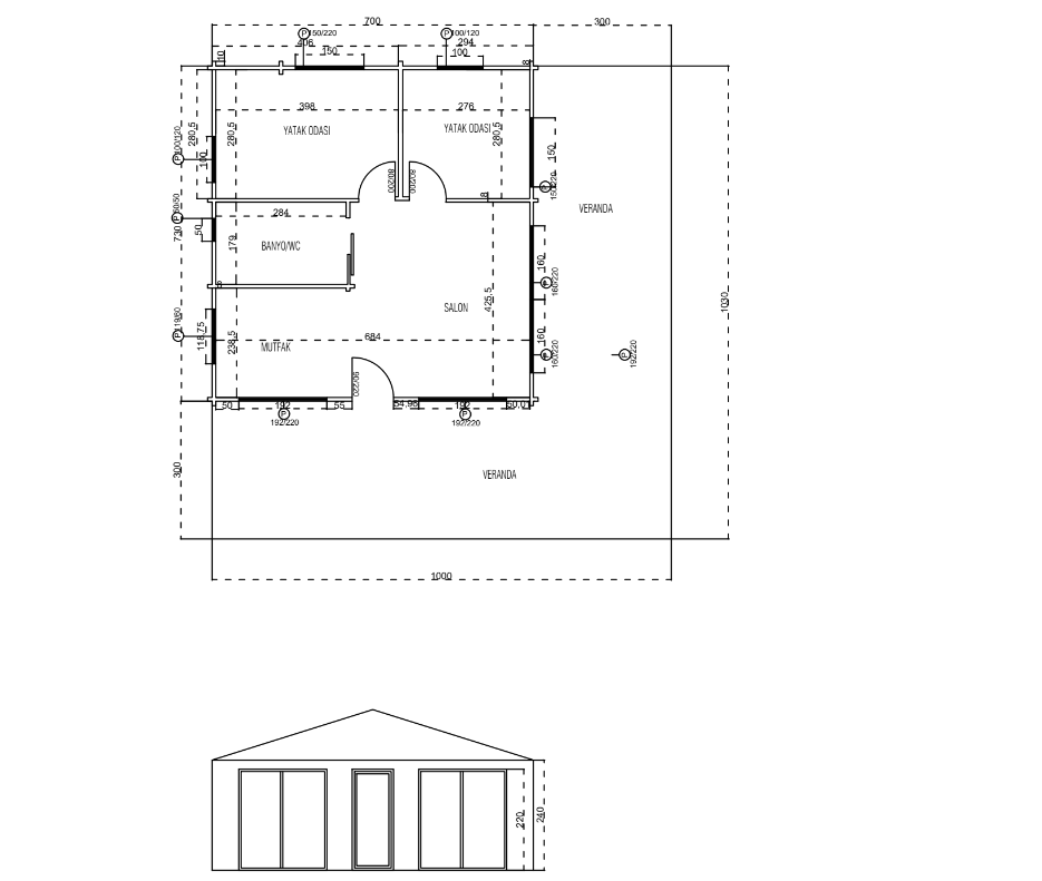
Oda sayısı: 2 + 1
Banyo sayısı: 1
Toplam Alan : 103 metrekare
Projelerimizin tümünde iç düzende değişiklik ya da dış görünüme eklemeler talep edebilirsiniz. Hayalinizdeki ahşap eve kavuşmak için bizlere 444 0 249 numarasından ulaşabilirsiniz.















